Hyttetype 4

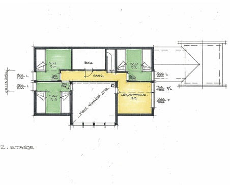
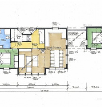
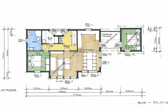
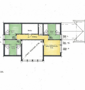
Mye plass! Hyttetype 4 er den største hytten i Bjørkeligrend feltet. Her har man hems på hele 38 kvm, og anneks på 9,2 kvm. Mye bodplass, stor stue med høyt under taket, stort kjøkken, loftstue og hele 5 soverom. For mer info om innhold, se prospektet.

Grunnflate: 99,6 kvm
BOA: 122,3 kvm
Hems grunnflate: 38 kvm
Anneks: 9,2 kvm
Soverom: 5 stk
Sengeplasser: 9 stk