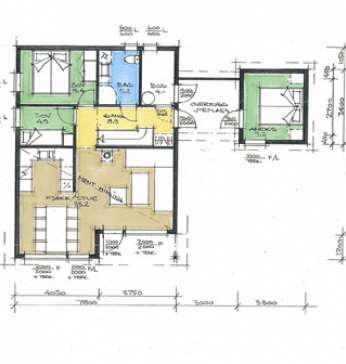
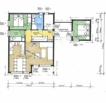
Hyttetype 3

Utsiktsplassen! Hyttetype 3 har vindusflater som tar pusten fra de fleste. Her kan man nyte solen som går ned i horisonten. Hytten har mange gode løsninger og har 5 soverom, stor gang, bad, 2 boder, stort kjøkken og en romselig stue. Anneks og hems. For mer info om innhold, se prospektet.

Grunnflate: 97,6 kvm
BOA: 97 kvm
Hems grunnflate: 37,5 kvm
Anneks: 9,2 kvm
Soverom: 5 stk
Sengeplasser: 9 stk