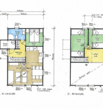
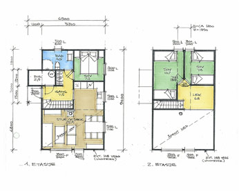
Hyttetype 1

Populær liten hytte på 49,9 kvm. grunnflate. Her får man mye hytte for pengene! Siden hytten er under 50 kvm. slipper man ny teknisk forskrift og vil derfor være rimelig. Til tross for strørrelsen har den mye oppholdsplass og godt med sengeplasser. Hytten er lys og luftig og har en åpen hems med en kjekk liten loftstue, tre soverom, bad, og en god bod. For mer info om innhold, se prospektet.

Grunnflate: 49,9 kvm
BOA: 56,5 kvm
Hems grunnflate: 28 kvm
Soverom: 3 stk
Sengeplasser: 6 stk