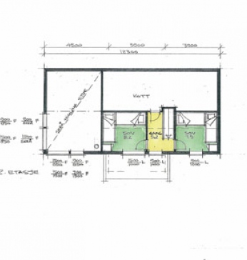
Hyttetype 2

Mye lys og en fantastisk utsikt! Hyttetype 2 har store glassflater i stue og kjøkkenet, med høyt under taket og glass på hele veggflatene. Hytten har 5 soverom, bad, gang, loftstue, stort kjøkken og romslig stue. For mer info om innhold, se prospektet.

Grunnflate: 99,9 kvm
BOA: 110,5 kvm
Hems grunnflate: 24,6 kvm
Anneks: 9,2 kvm
Soverom: 5 stk
Sengeplasser: 11 stk